
2007 | Wohnen
Wohnpark Eichwiesen | Fällanden
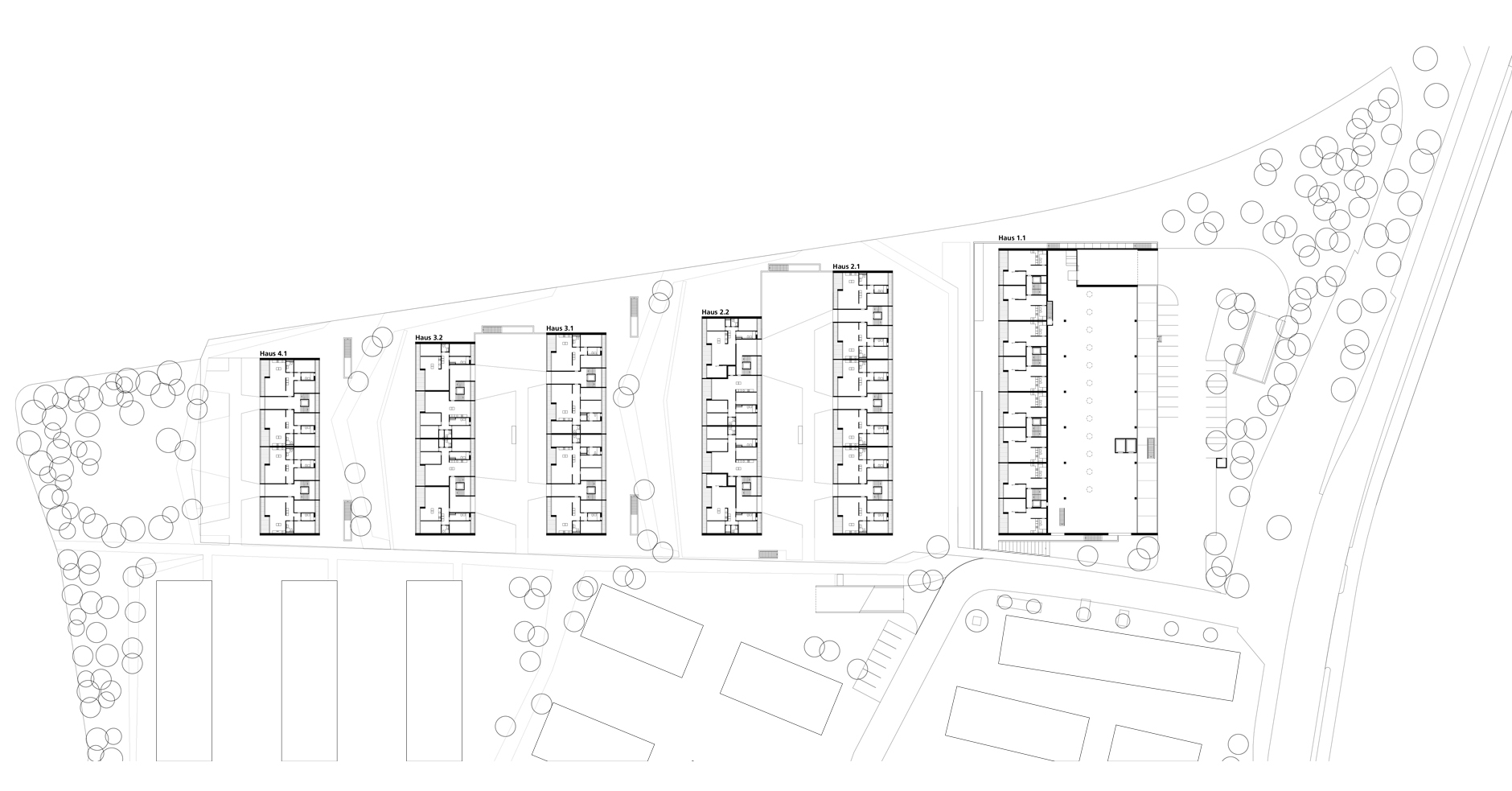
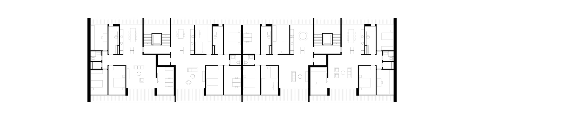
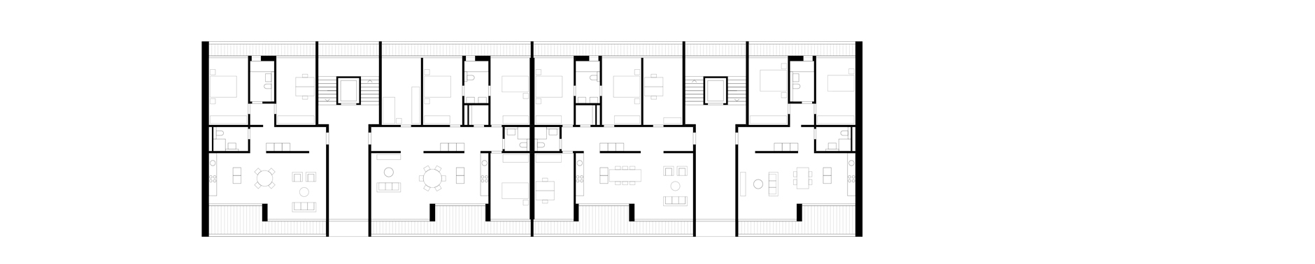
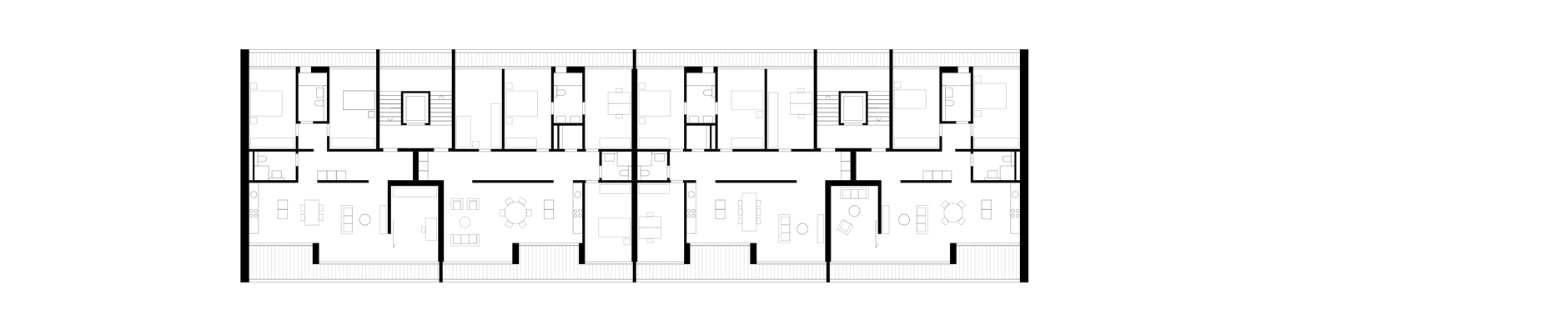
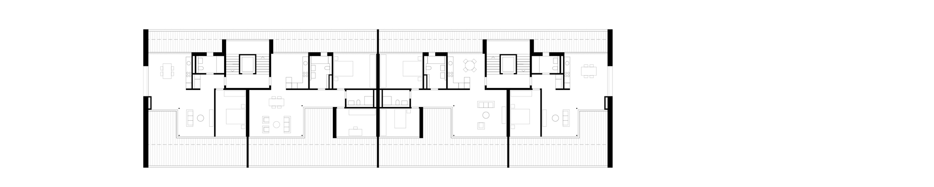
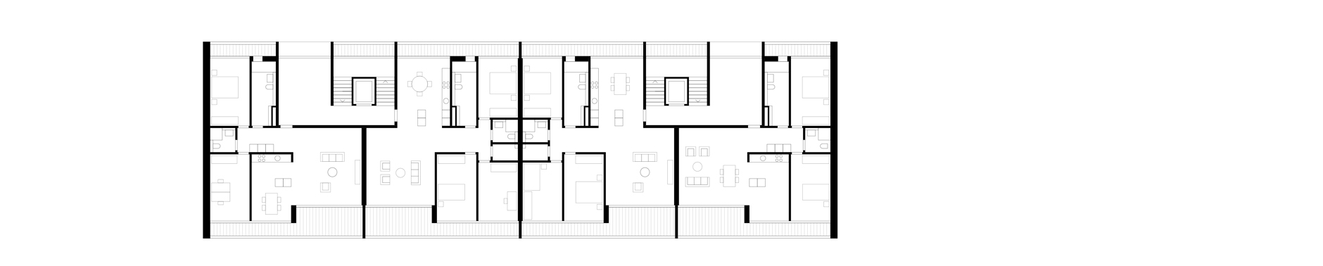
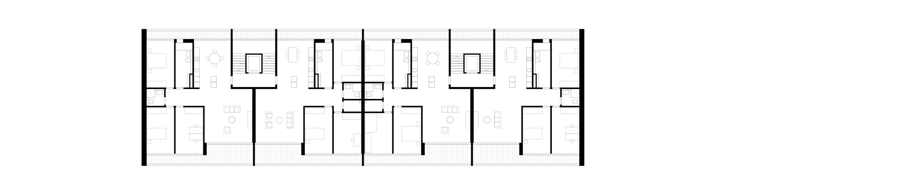
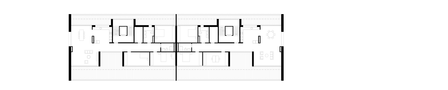
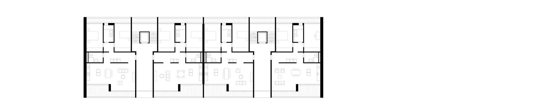
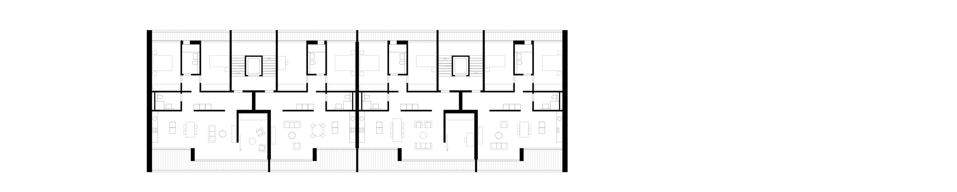
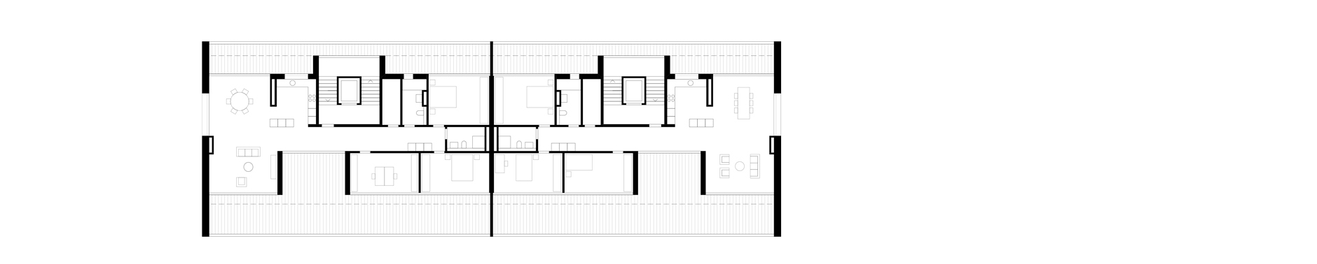
Die Aufgabe bestand darin, ein neues Quartier mit ca. 275 Wohnungen und 1500 m² Ladenfläche zu planen. Der Perimeter liegt im Spannungsfeld der historisch gewachsenen Kernzone und der in den letzten Jahren entstandenen Überbauungsstruktur um die "Letzacherstrasse" und der Stichstrasse "Im Rüeblig" in Fällanden. Die möglichst nahtlose Integration der Überbauung in den bestehenden Kontext, die Einbindung loser Strukturen und die Auseinandersetzung mit quartier-planerischen Vorgaben waren Schwerpunkte der Planung.
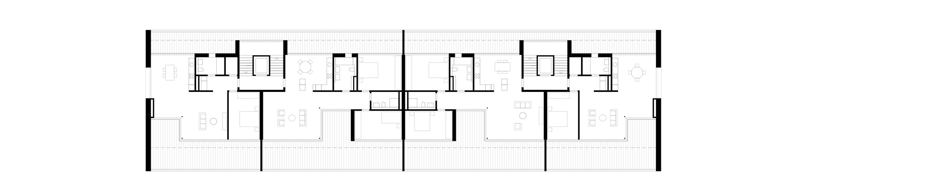
Der entwerferische Ausgangspunkt ist einerseits, die auf dem Grundstück vorzusehenden Verbindungswege und Platzräume als identitätsstiftende Elemente der Überbauung zu planen. Andererseits soll auf Grund der Grösse der Siedlung und des dörflichen Kontextes eine sozialverträgliche Strukturierung der Wohnsiedlung angestrebt werden. Die Wohnbauten werden dabei paarweise zu Wohnhöfen zusammengefasst, die jeweils einen direkten Zugang zur öffentlichen Erschliessungsstrasse haben.
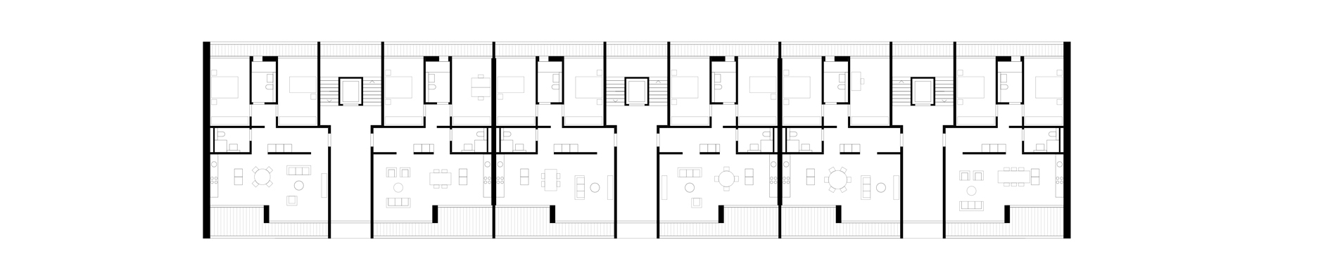
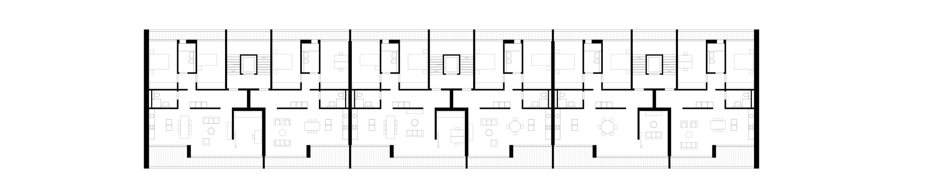
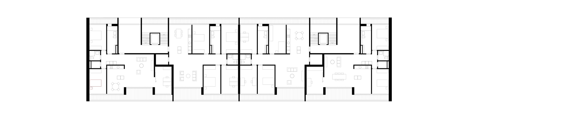
Architektonisch hat die Siedlung hohen gestalterischen Ansprüchen zu genügen und soll in zeitgemässer Formensprache umgesetzt werden.
Auf der Grundlage des von uns erarbeiteten Masterplans planen verschiedene Architekturbüros die Gesamtüberbauung. Frei Architekten AG realisierten ca. die Hälfte des Bauvolumens.


























Typ
Wohnen
Ort
Fällanden
Auftraggeber
Allreal GU AG
Fertigstellung
2007
Gebäudevolumen
46'123 m³