H92 B HP Schwarzplan

2025 | Industrie & Gewerbe

Logistikhub Mittelland 2 | Schafisheim

Impressionen
Pläne
Kenndaten
H92 B Visualisierung Aussen
H92 B HP Schwarzplan
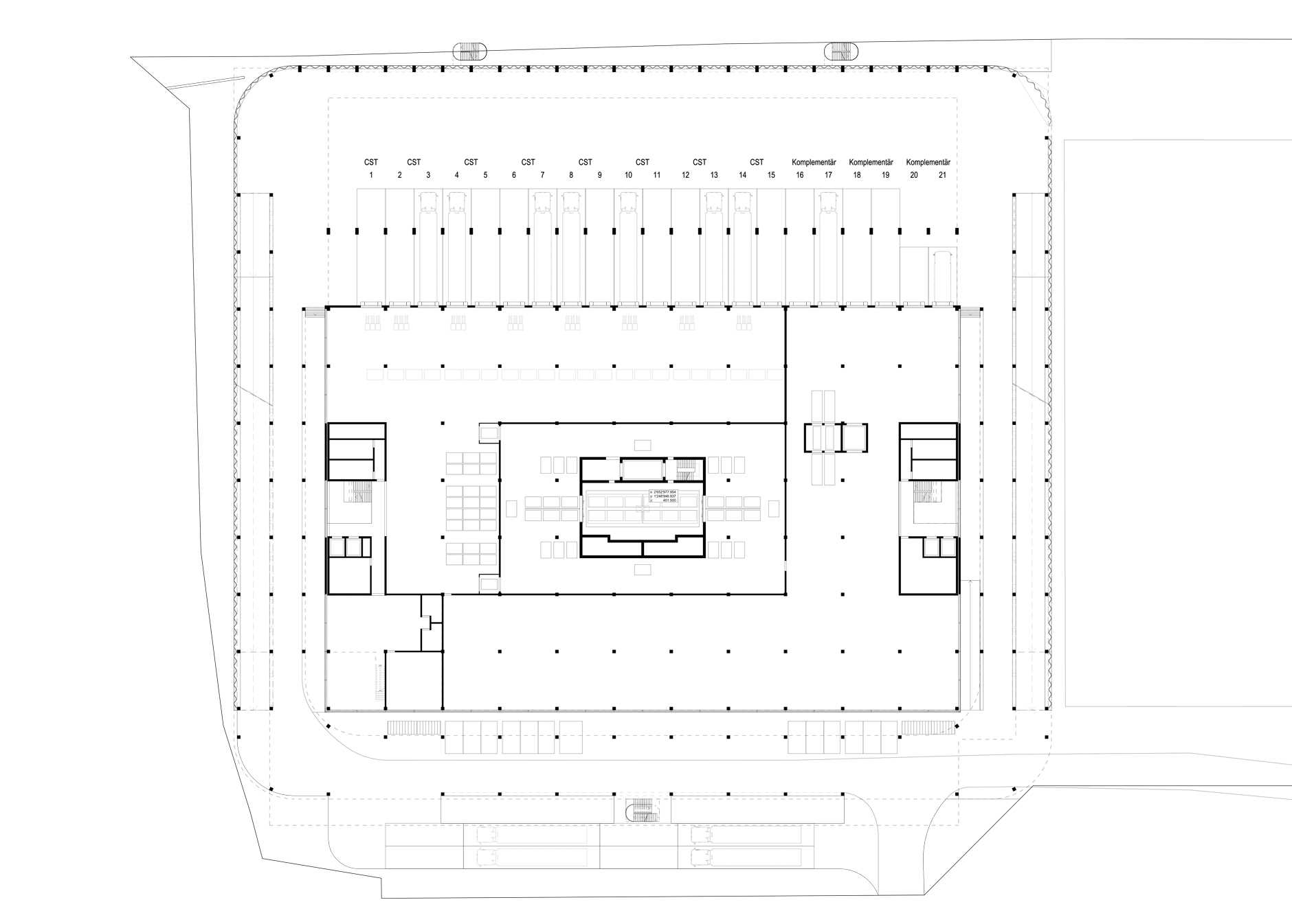
H92 B HP Grundriss Erdgeschoss
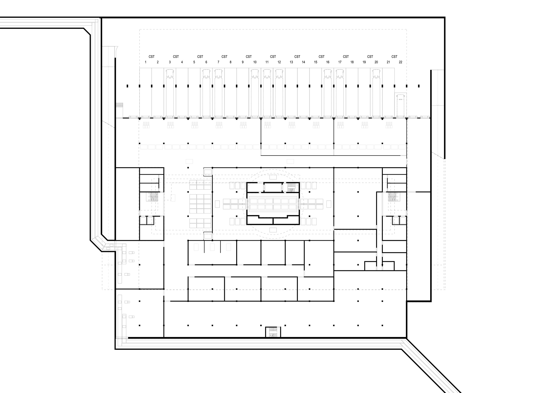
H92 B HP Grundriss Erdgeschoss ZG
H92 B HP Grundriss 1 Obergeschoss
H92 B HP Grundriss 1 Obergeschoss ZG
H92 B HP Grundriss 2 Obergeschoss
H92 B HP Grundriss 2 Obergeschoss ZG
H92 B HP Grundriss 3 Obergeschoss
H92 B HP Grundriss 3 Obergeschoss ZG
H92 B HP Grundriss Dachgeschoss
H92 B HP Grundriss Untergeschoss
H92 B HP Schnitt 1
H92 B HP Schnitt 2

Alle Pläne anzeigen

Typ

Industrie & Gewerbe

Ort

Schafisheim

Auftraggeber

Privat

Kopiert!