
2008 | Wohnen
Überbauung Neuhofstrasse | Lenzburg
Das Grundstück liegt am Fusse des Schlossbergs mit Hanggefälle nach Norden und unverbauter Aussicht auf das Schloss im Süden.
Die Parkierung erfolgt in einer zwischen den Häuserzeilen liegenden Einstellhalle mit 55 Stellplätzen, die sich dem Hanggefälle anpasst und somit einen barrierefreien Zugang zu allen Treppenhäusern ermöglicht. Die Hauseingänge zu den Wohnhäusern sind von einem zentralen Wohnhof zu erreichen, auf dem elipsenförmige Spiel- und Aufenthaltsbereiche angeordnet sind.
Eine markante, bepflanzte Sichtbetonwand bestimmt den Eindruck von der Neuhofstrasse. Über eine einläufige Treppe gelangt man von dem mit einem Brunnen aufgewerteten Vorplatz in den Wohnhof.
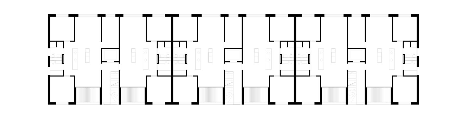
In den Standardgeschossen befinden 3.5 und 4.5-Zimmer-Wohnungen, die sich nur durch die Zuschaltung eines weiteren Zimmers in der Achse der Treppenkerne voneinander unterscheiden. Wohn- und Schlafbereich sind sinnvoll zoniert, die Wohn- und Esszone mit einer zentral liegenden Küche ist durchgesteckt (ost-west orientiert), mit einer jeweils an der Westseite vorgelagerten
Loggia. Die Attikawohnungen sind als 2.5- bzw. 3.5-Zimmer-Wohnungen mit grosser, nach aussen gewandter Terrasse ausgeführt. Das geforderte Raumprogramm mit Total 38 Wohnungen wird in zwei länglichen, dem Hangverlauf entsprechend abgetreppten Baukörpern untergebracht. Die Häuser sind dabei 2- bis 3-geschossig und haben ein zusätzliches Attikageschoss.










Typ
Wohnen
Ort
Lenzburg
Auftraggeber
Pensionskasse PUBLICA
Fertigstellung
2008
Gebäudevolumen
23´857 m³
Fotograf
Roger Frei