
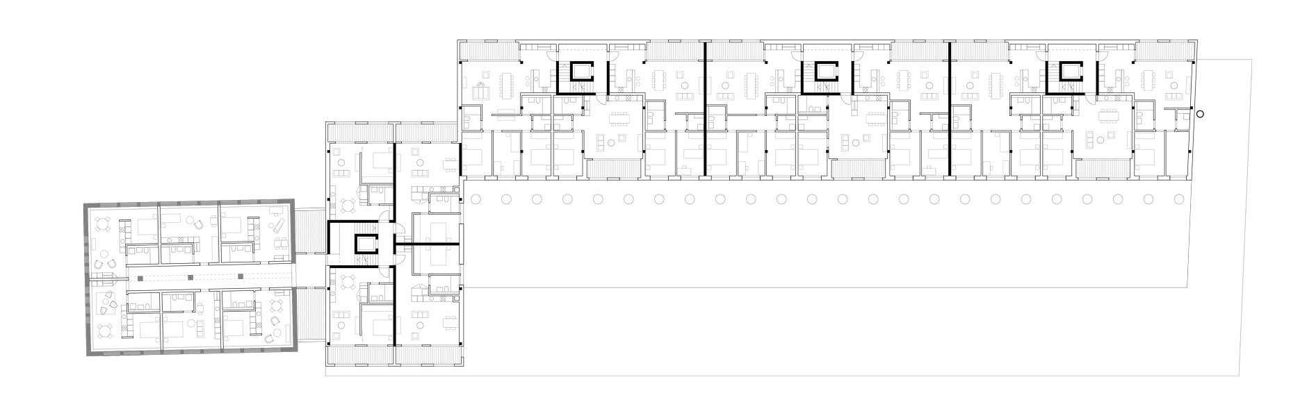
2025 | Wohnen
ÜB Luzernerstrasse | Oftringen










Typ
Wohnen
Ort
Oftringen
Auftraggeber
Privat
Gebäudevolumen
38'170 m³
Hauptnutzfläche
6'078 m²
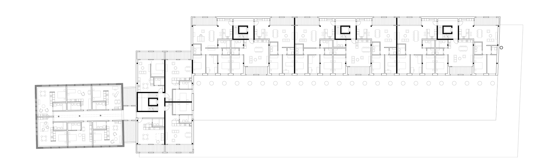
2025 | Wohnen
Typ
Wohnen
Ort
Oftringen
Auftraggeber
Privat
Gebäudevolumen
38'170 m³
Hauptnutzfläche
6'078 m²