
2006 | Öffentliche Gebäude
Werkstätte | Reinach
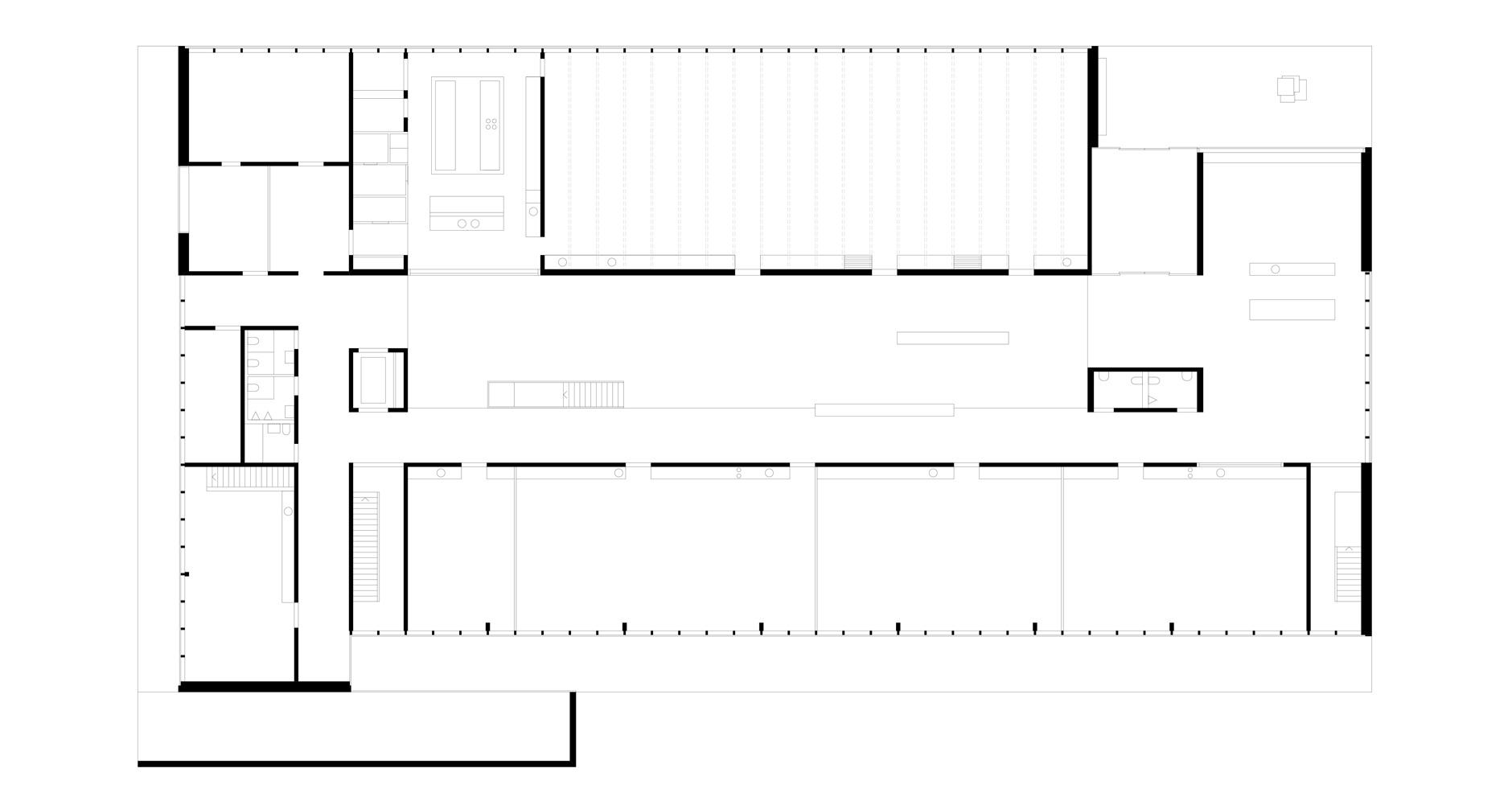
Der Neubau ist als kompakter Baukörper an die Nordgrenze der zur Verfügung stehenden Parzelle gestellt. Gegenüber dem WSB-Trassee und der Baselgasse ist der Bau 2‑geschossig, nach Osten 1‑geschossig konzipiert.
In das Gebäude, ein einfaches, kompaktes Rechteck, sind verschiedene weitere Rechtecke eingeschoben, in denen die einzelnen Nutzungsgruppen angeordnet sind. Innerhalb dieser Nutzungsgruppen ist eine maximale Flexibilität gewährleistet. So können im Werkstatttrakt, im Bürobereich und im Trakt Mehrzweckraum/Essen/Kochen sämtliche Leichtbauwände verschoben oder ganz entfernt werden.
Über einen gedeckten Vorplatz und einen Windfang betritt man die von oben und seitlich belichtete, zweigeschossige Eingangshalle. Sie liegt zentral und ist das eigentliche Scharnier der ganzen Anlage ein Raum, der für temporäre Ausstellungen, als Treffpunkt oder einfach zum "Schnaufen" genutzt werden kann. Von hier aus sind sämtliche Räume erschlossen.
Die gesamte Konstruktion ist konsequent in Primär- und Sekundärstruktur getrennt. Die Primärstruktur besteht aus tragenden Wandscheiben, Stützen und Flachdecken. Demgegenüber sind sämtliche Trennwände und die Fassade in Leichtbauweise erstellt. Daraus resultieren günstige Erstellungskosten sowie eine maximale Flexibilität für zukünftige Veränderungen.












Typ
Öffentliche Gebäude
Ort
Reinach
Auftraggeber
Stiftung Lebenshilfe
Fertigstellung
2006
Wettbewerb
1. Rang, 2004
Fotograf
Daniel Roznovjak